22193 E Via Del Oro, Queen Creek, AZ 85142

22193 E Via Del Oro, Queen Creek, AZ 85142
Photo 1 of 39
$649,000
Beds Baths Sq. Ft. Taxes Built
4 2.10 3,481 $2,929 2016
On the market: 100 days

Est. Monthly Payment:

$4,130($3,886 + $244 taxes*)

Don't let your dream home get away from you! Be prepared!  Get qualified for a home loan today.

APPROVED
View full details, photos, school info, and price history
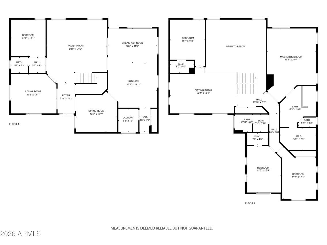
Spacious 3,481 SF home in Queen Creek offering flexible living options and strong value. Fresh interior paint and a clean, well-maintained interior provide a great foundation for your personal updates. Downstairs features a formal living room plus a private den/office and half bath--ideal for a work-from-home setup or potential guest suite/multi-gen living. All bedrooms are upstairs with generous room sizes and functional layout. Includes a 3-car garage and RV gate for added convenience. North-facing backyard with no neighbors behind and a covered patio perfect for outdoor living. Located near Queen Creek High School, Frontier Family Park, Pecan Lake, shopping, dining, and freeway access. Seller open to concessions. Click ''More...'' for more details. Spacious and versatile 3,481 SF home in the desirable Ocotillo Heights area of Queen Creek offering a flexible floor plan and excellent opportunity for a buyer to personalize and add value. The interior has been recently refreshed with new paint and has been professionally cleaned, creating a clean and well-maintained environment ready for immediate occupancy. While many of the interior finishes are original to the home--including tile flooring, cabinetry, countertops, and fixtures--the home presents a solid foundation for a buyer to update and customize to their own style over time. A standout feature of this property is the flexibility of the downstairs layout. Upon entry, you are welcomed by a formal living room, along with a private den/office and nearby half bath. This configuration is ideal for today's work-from-home lifestyle. Additionally, the layout lends itself to potential reconfiguration into a guest suite, multi-generational living space, or private quarters, offering long-term versatility that many homes in the area do not provide. Upstairs, all bedrooms are generously sized, providing separation between living and sleeping spaces. The loft area offers additional flexible living space for a media room, play area, or secondary office. The backyard has been recently improved with fresh winter grass creating a more inviting outdoor setting. There is also opportunity for further enhancement, whether through landscaping upgrades, outdoor living features, or customization to suit your needs. In today's market, many nearby homes feature updated interiors and finishes. This property is positioned as an opportunity for a buyer to enter the neighborhood at a competitive value and invest in updates according to their own preferences, rather than paying a premium for someone else's design choices. Seller is open to creative and flexible concessions, which may include consideration toward flooring replacement, closing costs, or other buyer needs, subject to the terms of an accepted offer. This provides additional opportunity for buyers to tailor the home to their liking. Located near parks, schools, shopping, and dining, this home combines space, location, and flexibility--making it an excellent option for buyers seeking value and long-term potential in Queen Creek.
Listing courtesy of Traci Payne & John Payne, United CountryReal Estate-Arizona Property & Auction & United CountryReal Estate-Arizona Property & Auction