37526 W Polk St., Tonopah, AZ 85354

37526 W Polk St., Tonopah, AZ 85354
Photo 1 of 1
$240,000
Sold on 8/31/21
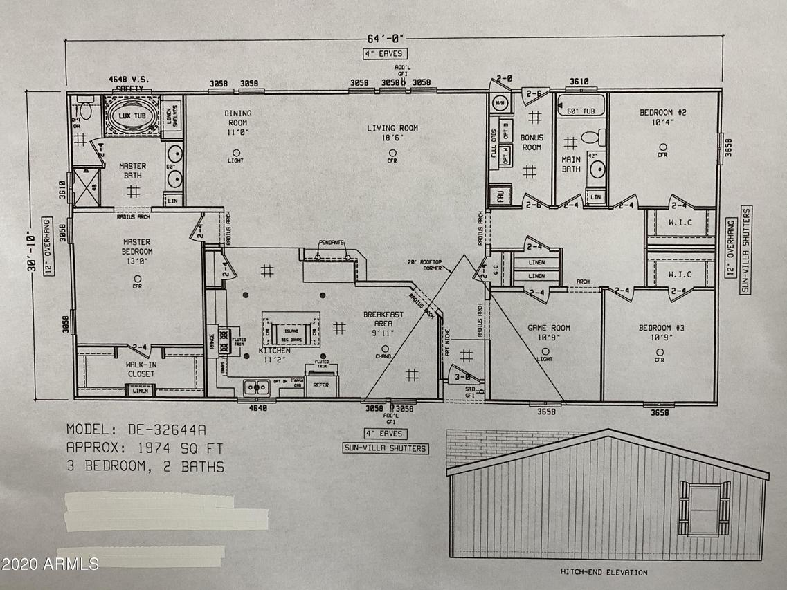
Beds Baths Sq. Ft. Taxes Built
4 2.00 1,974 $126 2021
On the market: 264 days
View full details, photos, school info, and price history
Beautiful brand new Cavco home on 1 acre! Open floor plan with 4 spacious bedrooms with walk-in closets. Lots of great upgrades in this home some of which include 2X6 walls with R19 insulation R40 insulation in roof. Kitchen features include 39'' deluxe hardwood cabinets, soft close drawers, trash can pull out cabinet, nickel hardware. 40 gallon water heater. 200 amp electrical service. Architectural shingles and SmartPanel vertical wood siding. So many great things about this home! Only 4 people on well and home is FHA certified with engineering certificate. Home financing can be FHA & VA.
Listing courtesy of Lori Soland & Mark Soland, West USA Realty & West USA Realty