Paul Morris Dr., Englewood, FL 34223
Photo 1 of 15
$774,995
Beds Baths Sq. Ft. Taxes Built
0.00 0 $3,655.41
On the market: 108 days

Est. Monthly Payment:

$4,945($4,640 + $305 taxes*)

Don't let your dream home get away from you! Be prepared!  Get qualified for a home loan today.

APPROVED
View full details, photos, school info, and price history
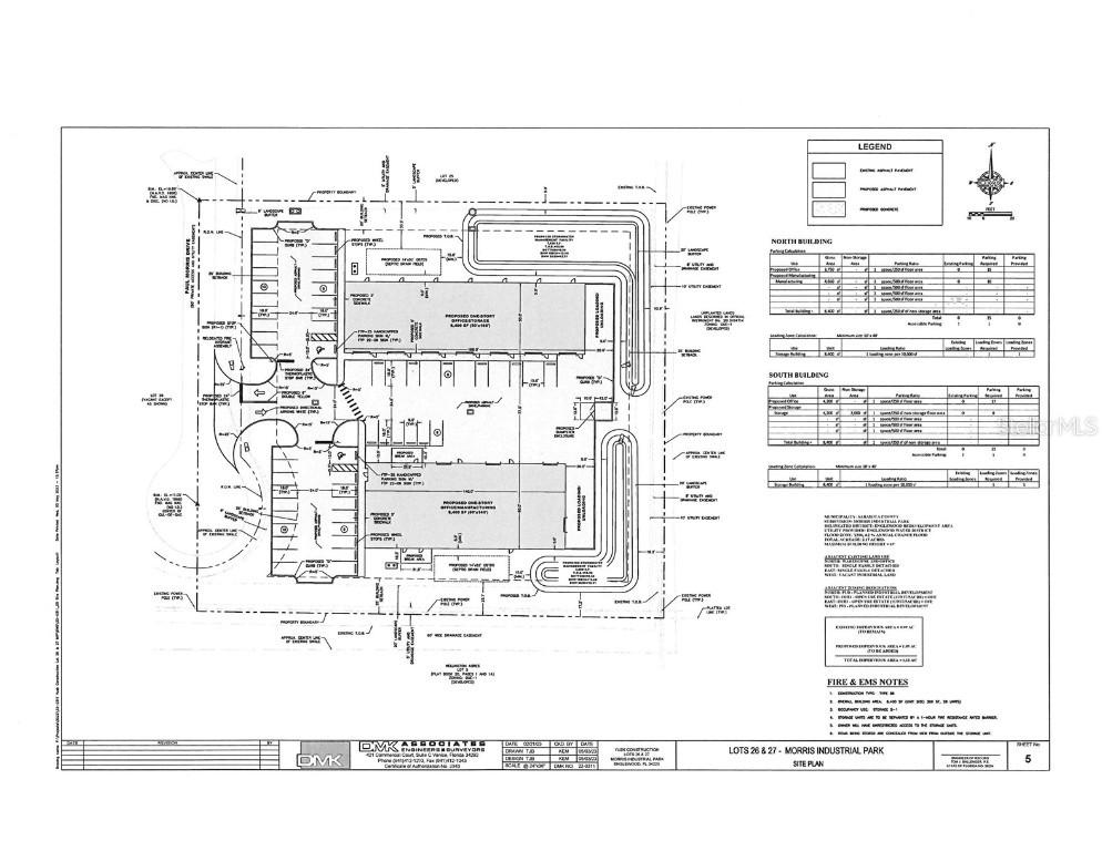
2-acre industrial development opportunity in Morris Industrial Park with a full set of building plans included and permitting achievable in approximately 30–45 days. Skip the 18–24 months of engineering, environmental studies, and design work and move straight toward construction. The approved site plan features two one-story buildings, each approximately 8,400 square feet. The north building is 50’ x 168’ and designed for seven RV or storage units, while the south building is 60’ x 140’ and designed for office and light manufacturing use. Environmental studies are available, and full engineering and site planning have already been completed. Located off River Road with direct access to US-41 and I-75 in a high-demand industrial corridor. This is a permit-ready project that saves significant time and money for investors or owner-users looking to fast-track development.
Listing courtesy of Fran Colosimo, PARADISE EXCLUSIVE INC